Contacteer ons

Lichtrijk wonen met landelijk uitzicht

100% instapklaar

Energielabel A+

E-peil -2

Zero CO2

In deze gloednieuwe, 100% instapklare woning speelt daglicht de hoofdrol. Dankzij de hoge plafonds, royale glaspartijen en een open ruimteverdeling stroomt op het gelijkvloers het zonlicht moeiteloos binnen en vult het met een warme, zonnige gloed. De zuidwestelijke oriëntatie zorgt voor zonovergoten namiddagen en lange, warme avonden, zowel binnen als in de heerlijke, aangelegde tuin met achteraan zicht op rustgevende weilanden. En binnen? Daar is gewerkt aan een overvloed aan wooncomfort en een heerlijk thuisgevoel. Deze plek is ingebed in een ruime omgeving van bos- en weilanden en vlot bereikbaar richting Leuven en Brussel via onder meer de E40 (oprit Boutersem) op 10 min. rijden.

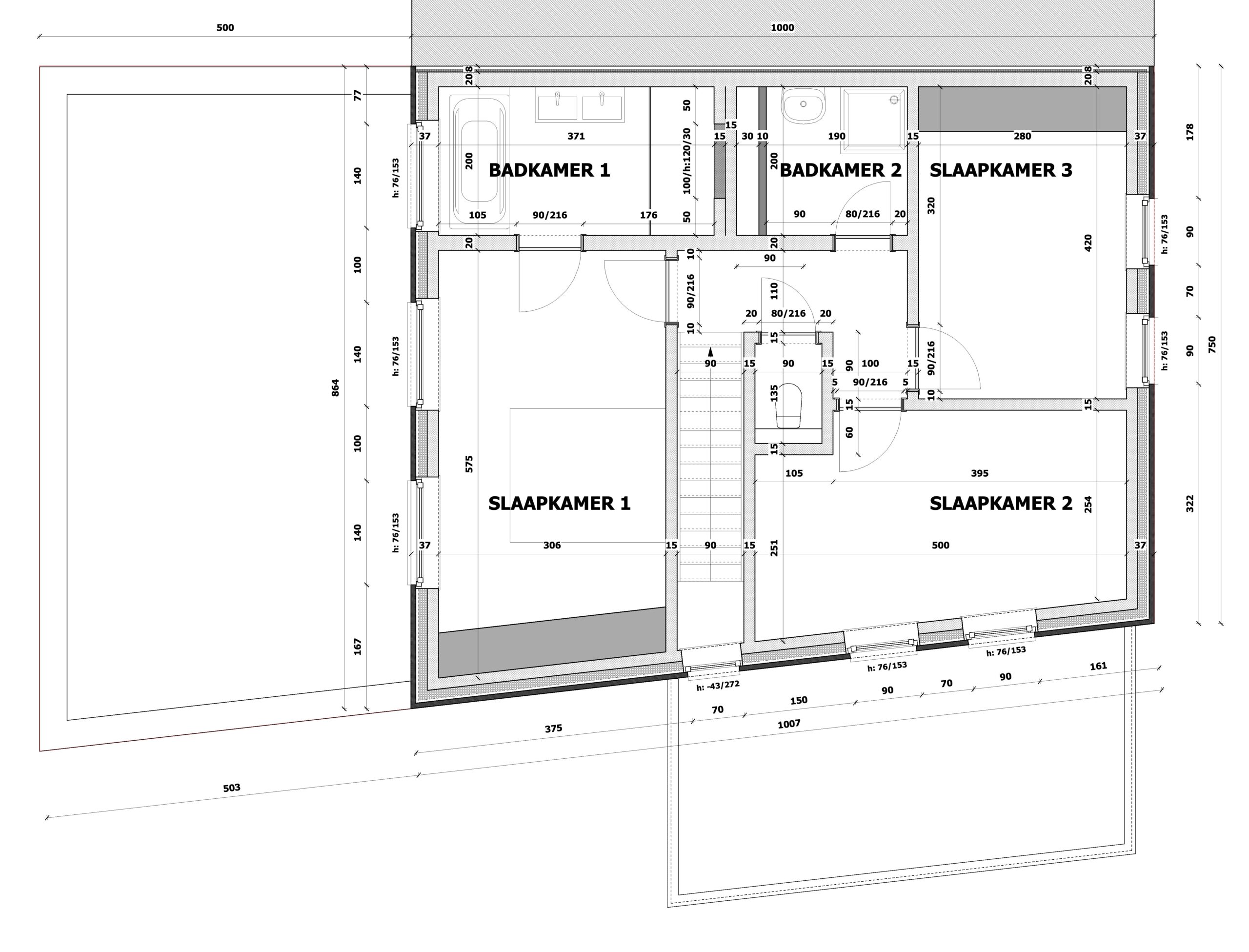
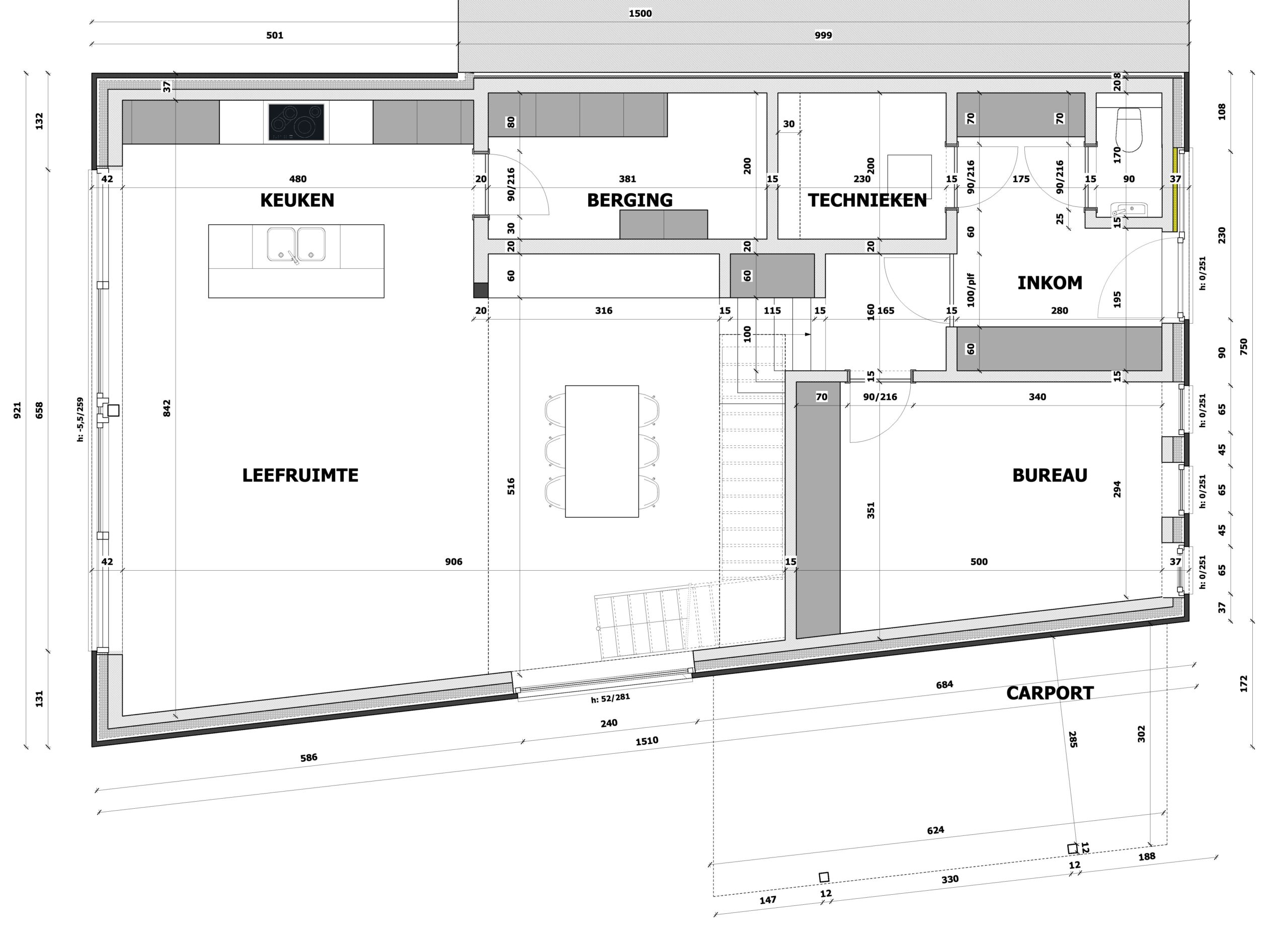
Centraal in de leefruimte trekt de moderne Z-trap meteen de aandacht – een subtiele knipoog naar het luchtige en luxueuze loftgevoel. De lichtrijke living en open keuken met aangrenzende berging lopen naadloos over in de aangelegde tuin, met grote schuiframen die binnen en buiten moeiteloos laten samenvloeien. De aparte bureauruimte biedt een rustige werkplek en de ruime inkomhal biedt mogelijkheid tot een op maat gemaakte vestiairekast. Op de eerste verdieping wachten drie

volwaardige slaapkamers, waaronder een mooie master met privébadkamer en uitzicht op het groen. Een tweede badkamer voor kinderen of gasten maakt de bovenverdieping compleet. De woning werd bovendien geschilderd in zachte, tijdloze tinten en voorzien van stijlvolle raamdecoratie en verlichting op het gelijkvloers en in de en-suite badkamer.

Ook technisch is hier niets aan het toeval overgelaten. De geothermische warmtepomp met verticale boringen, vloerverwarming op elk niveau en passieve koeling zorgen voor een aangenaam binnenklimaat, terwijl o.m. 12 zonnepanelen van 445 Wp en een regenwaterrecuperatie van 10.000 liter bijdragen aan de energie-efficiëntie. Het resultaat? Een indrukwekkend energielabel A+ (E-peil -2) en een woning die toekomstbestendig én duurzaam is.

Een nieuwbouwwoning die niet alleen tot in de perfectie is afgewerkt, maar ook een warm en tijdloos thuisgevoel ademt.

Malendriesstraat 23A – 3370 Boutersem

Zonovergoten namiddagen en lange, warme avonden, zowel binnen als in de heerlijke, aangelegde tuin met achteraan zicht op rustgevende weilanden

Algemene kenmerken

  • 100% instapklare woning
  • Aangelegde tuin met achteraan zicht op rustgevende weilanden
  • Op 10 minuten van oprit E40 (Boutersem)
  • Ruime omgeving van bos- en weiland
  • Lichtrijke leefruimte met hoge plafonds en op maat gemaakte open keuken
  • Aparte bureauruimte
  • 3 slaapkamers waarvan mastersuite met privébadkamer & -dressing
  • Tweede badkamer voor kinderen/gasten
  • Ruime inkomhal
  • Carport
  • Overvloedig aantal brede en hoge raampartijen
  • Volledig afgewerkt met hoogwaardige schilderwerken, designverlichting & raamdecoratie van topkwaliteit
  • Energielabel A+ (E-peil -2)
  • 12 zonnepanelen van 445 Wp
  • Geothermisch warmtepomp (verticale boringen): zero CO2 uitstoot
  • Vloerverwarming en passieve koeling
  • Balansventilatie ‘systeem D’ met warmterecuperatie & ‘free cooling’
  • Regenwaterrecuperatie 10.000 liter
  • Moderne, eiken Z-trap
  • Prekablering alarminstallatie
  • Inbouwspots, hangwc’s, sierradiatoren, vorstvrije buitenkraan
  • Hier nog veel meer over het technische DNA van een Kwadraat-woning

Energielabel A+

E-peil -2

Geothermische warmtepomp

12 zonnepanelen

Balansventilatie D

Hypergeïnstalleerde open keuken

Aparte bureau

3 Slaapkamers

2 Badkamers

Aparte berging

Carport

Volledig geschilderd

Mooie verlichting

Warme raamdecoratie

Op maat gemaakte kast

Aangelegde tuin

8,57 are

Zuid-west

Prijs instapklaar +:
€ 729.000
+ 0% *
* registratierechten + BTW
?
(meeneembaarheid: )
Extra voordelen
  • E-peil ≤ 10: 100% korting OV x 5 jaar
    ?

Wat houdt ‘Instapklaar (+)’ in?

De prijs heeft betrekking op ons afwerkingsniveau ‘Instapklaar’ (integrale, hoogstaande afwerking van de woning, inclusief parket op gelijkvloers en eerste verdieping, op schilderwerken en tuin na) waaraan volgende werken werden toegevoegd:

  • Schilderwerken
  • Tuin
  • Raamdecoratie
  • Design verlichtingsarmaturen
  • Ingemaakte kasten
  • Led-tv

 

Oppervlakte terrein:
8,57 are
Oriëntatie terrein:
Zuid-west
Verband:
Halfopen
Oppervlakte woning:
206,02 m2
Oppervlakte leefruimte:
65 m2
Aantal kamers:
3
Aantal badkamers:
2
Stand der werken:
Voltooid
Gelijkvloers
Inkomhal, toilet, leefruimte, bureau, keuken, berging, technisch lokaal, carport
1e verdieping
Nachthal, 3 slaapkamers waaronder mastersuite met dressing en eigen badkamer, 2de badkamer
Kerncijfers
E-peil:
-2
?
S-peil:
26
?
Energiebehoefte:
-3 kWh per m²
?
Zonnepanelen
Aantal zonnepanelen:
12
Wp per paneel:
445
Verwarming
  • Geothermische warmtepomp
    ?
Isolatie
  • 20 cm Ytong + 10 cm isolatie/sierpleister
    ?
  • 21 cm PUR vloerisolatie
    ?
  • 14 cm dakisolatie in Polyurethaan
    ?
  • Driedubbele, zonwerende beglazing met U-waarde 0.6
    ?
Ventilatie
  • D-systeem met warmterecuperatie
    ?
  • Vergunning uitgereikt
  • Geen dagvaarding uitgebracht
  • Geen voorkooprecht ruimtelijke ordening aanwezig
  • Verkavelingsvergunning
  • Meest recente stedenbouwkundige bestemming: Woongebied (residentieel, stedelijk of landelijk)
Adres

Malendriesstraat 23a, Boutersem, België

Bekijk op google maps

Routebeschrijving

Op de steenweg Leuven – Tienen (vóór de lichten van Boutersem) neemt u de Kerkomsesteenweg tot in Kerkom. Een paar honderd meter voorbij de kerk van Kerkom (die staat links), rijdt u aan het kruispunt links de Malendriesstraat in. Het project bevindt zich 300 meter verder, links van het nummer 25.

Terug naar overzicht

Heeft u vragen?
Aarzel niet en contacteer ons