Contacteer ons

Exclusief Wonen op Toplocatie in Overijse

100% instapklaar

Energielabel A+

E-peil -2

Zero CO2

Zuiver Signatuur Kwadraat, deze gloednieuwe, tot in de puntjes afgewerkte designvilla, gelegen in een rustig straatje dat uitmondt in een tijdloos mooie, landelijke omgeving. De woning is uitzonderlijk goed gelegen: vlakbij het centrum van Overijse, het prachtige Park & Arboretum van Tervuren (deel van het Zoniënwoud) en het groene Huldenberg – allemaal vlot bereikbaar met de fiets – en iets verder het uitgestrekte Meerdaalbos. Tegelijk geniet u hier van een uitstekende verbinding naar zowel Brussel als Leuven.

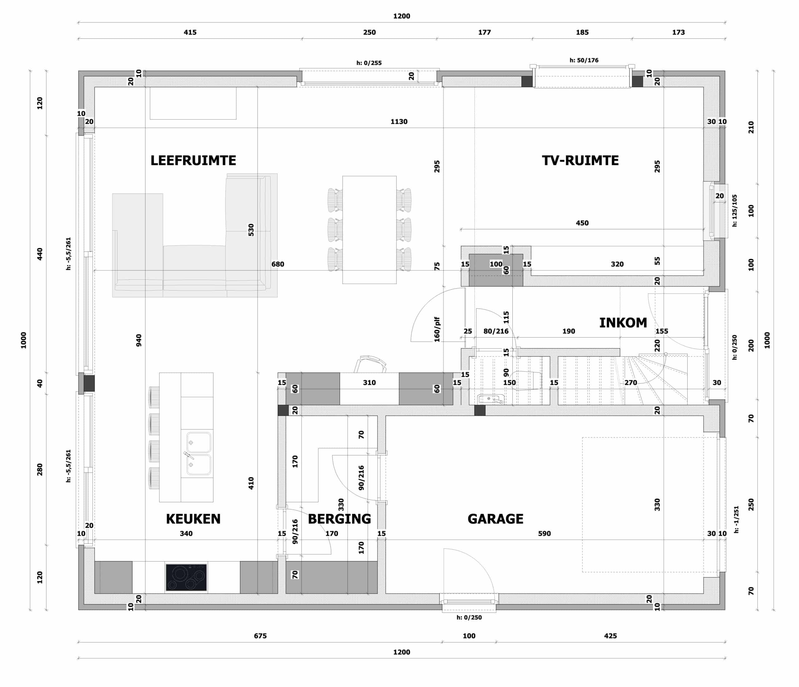
De openheid van de omgeving weerspiegelt zich in het interieur: 320 m² bewoonbare oppervlakte, een doordachte indeling, grote glaspartijen voor een overvloed aan daglicht, terwijl de grote leefruimte met open keuken, berging en inpandige garage praktisch en elegant zijn uitgewerkt.

De woning telt bovendien zes ruime kamers, waaronder een prachtige mastersuite met privébadkamer en -dressing, en een tweede badkamer. Hier woont u in vrijheid, comfort en huiselijkheid.

Ook de afwerking is subliem: alle ruimtes werden voorzien van verfijnd schilderwerk in stijlvolle kleuren, en de gelijkvloerse verdieping werd uitgerust met elegante raamdecoratie, mooie sfeerverlichting en een

prachtig aangelegde tuin.

Aan de buitenkant van deze woning zijn de kunstige, evenwichtig en eigentijds opgebouwde gevels in witte sierpleister het resultaat van een geanimeerde interpretatie van een modern, strak design; de milde aanwending van natuurlijk te vergrijzen hardhout geeft de woning bovendien een prettig warme uitstraling. De speelse constellatie van het buitenschrijnwerk voorziet het geheel van een luchtige toets.

Uiteraard voldoet deze villa aan de hoogste isolatie- en energienormen. Ze maakt duurzaam gebruik van 10.000 liter regenwater, wordt volautomatisch geventileerd via een balansventilatiesysteem D, omvat 16 zonnepanelen van 440 Wp en geniet van aangename vloerverwarming, aangedreven door een krachtige geothermische warmtepomp met verticale boringen en passieve koeling (zero CO₂-uitstoot), resulterend in een fantastisch E-peil -2 (energielabel A+).

Een unieke kans voor wie op zoek is naar eigentijds design, luxe, een schitterende locatie en een ongeëvenaarde ecologische duurzaamheid.

Lindaal 91A – 3090 Overijse

320 m² bewoonbare oppervlakte, een doordachte indeling, grote glaspartijen voor een overvloed aan daglicht

Algemene kenmerken

  • Moderne villa met een strak design
  • Rustig straatje in landelijke omgeving
  • Op fietsafstand van het Park & Arboretum (Zoniënwoud) van Tervuren
  • Vlakbij centrum Overijse
  • Vlotte connectie richting Brussel en Leuven
  • Hypergeïnstalleerde, open keuken
  • 4 ruime slaapkamers waaronder mastersuite met privédressing & -badkamer
  • 2de badkamer voor kinderen/gasten
  • 2 polyvalente ruimtes (voor fitness, hobbykamer, extra kamer…)
  • Inpandige garage
  • Mooi aangelegde tuin
  • 100% instapklaar afgewerkt, met mooie schilderwerken en warme raamdecoratie & verlichting
  • E-peil -2 (energielabel A+)
  • Driedubbele, zonwerende beglazing
  • 16 zonnepanelen van 440 Wp
  • Verwarming met geothermische warmtepomp (zero CO2 uitstoot!)
  • Vloerverwarming en passieve koeling
  • Regenwaterrecuperatie (10.000 liter regenwater)
  • Balansventilatie ‘systeem D’ met warmterecuperatie & ‘free cooling’
  • Gebouwscore A
  • Inbouwspots, hangwc’s, vorstvrije buitenkraan
  • Hier nog veel meer over het technische DNA van een Kwadraat-woning

Energielabel A+

E-peil -2

Geothermische warmtepomp

16 zonnepanelen

Balansventilatie D

Hypergeïnstalleerde keuken

4 Slaapkamers

Mastersuite met dressing

2 Badkamers

2 polyvalente ruimtes

Aparte berging

Inpandige garage

Eiken parket op twee niveaus

Eiken trap naar elk niveau

Geschilderd

Mooie sfeerverlichting

Elegante raamdecoratie

Aangelegde tuin

Prijs instapklaar +:
€ 978.000
+ 0% *
* registratierechten + BTW
?
(meeneembaarheid: )

Wat houdt ‘Instapklaar (+)’ in?

De prijs heeft betrekking op ons afwerkingsniveau ‘Instapklaar’ (integrale, hoogstaande afwerking van de woning, inclusief parket op gelijkvloers en eerste verdieping, op schilderwerken en tuin na) waaraan volgende werken werden toegevoegd:

  • Schilderwerken
  • Tuin
  • Raamdecoratie
  • Design verlichtingsarmaturen
  • Led-tv
Oppervlakte terrein:
6,16 are
Oriëntatie terrein:
Oost
Verband:
Open
Oppervlakte woning:
319,58 m2
Oppervlakte leefruimte:
54,24 m2
Aantal kamers:
6
Aantal badkamers:
2
Stand der werken:
Voltooid
Gelijkvloers
Inkomhal, toilet, leefruimte, keuken, berging en garage
1e verdieping
Nachthal, 4 slaapkamers waarvan mastersuite met eigen badkamer en dressing, 2de badkamer, toilet
2e verdieping
Traphal, technisch vertrek, 2 polyvalente ruimtes
Kerncijfers
E-peil:
-2
?
S-peil:
30
?
Energiebehoefte:
2 kWh per m²
?
Zonnepanelen
Aantal zonnepanelen:
16
Wp per paneel:
440
Verwarming
  • Geothermische warmtepomp
    ?
Isolatie
  • 20 cm Ytong + 10 cm isolatie/sierpleister
    ?
  • 21 cm PUR vloerisolatie
    ?
  • 22 cm glaswol dakisolatie
    ?
  • Driedubbele, zonwerende beglazing met U-waarde 0.6
    ?
Ventilatie
  • D-systeem met warmterecuperatie
    ?
  • Vergunning uitgereikt
  • Geen dagvaarding uitgebracht
  • Geen voorkooprecht ruimtelijke ordening aanwezig
  • Verkavelingsvergunning
  • Meest recente stedenbouwkundige bestemming: Woongebied (residentieel, stedelijk of landelijk)
Adres

Lindaal 91a, Overijse, België

Bekijk op google maps

Routebeschrijving

Neem op de E40 afrit 15 Leuven. Sla op het einde van de afrit rechts de N253 op, richting Overijse). Volg deze over een afstand van 12 km (en passeer door Ormendaal, Korbeek-Dijle, Neerijse en Huldenberg) en sla dan rechts Kaalheide in. Volg deze weg over een afstand van 1,6 km en sla dan rechts Lindaal in. 380 meter verder, op de hoek met de Notelarenstraat, bevindt zich het project.

Terug naar overzicht

Heeft u vragen?
Aarzel niet en contacteer ons