Contacteer ons

Twee Exclusieve Villa’s met Karakter in Holsbeek (6% btw*)

Aan 6% btw*

Energielabel A+

E-peil -1

Zero CO2

Op royale percelen van ca. 8 are are ontvouwen zich twee moderne nieuwbouwvilla’s die uitblinken in ruimte, licht en tijdloze vormgeving. Op slechts 15 minuten van het bruisende centrum van Leuven en met een bijzonder vlotte aansluiting op de E314, verenigen deze woningen het beste van twee werelden: de rust en het groen van het Hageland met de gezellige nabijheid van de stad. Bovendien komen beide villa’s in aanmerking voor aankoop aan het verlaagde btw-tarief van 6% (*o.v.)

De combinatie van hoge plafonds en uitgestrekte raampartijen laat het daglicht van ’s ochtends tot ’s avonds overvloedig binnenstromen. Zo ontstaat een indrukwekkend gevoel van ruimtelijkheid in de royale leefruimte, de prachtige open keuken en de aparte tv-ruimte, die evengoed kan dienstdoen als bureau of thuiswerkplek.

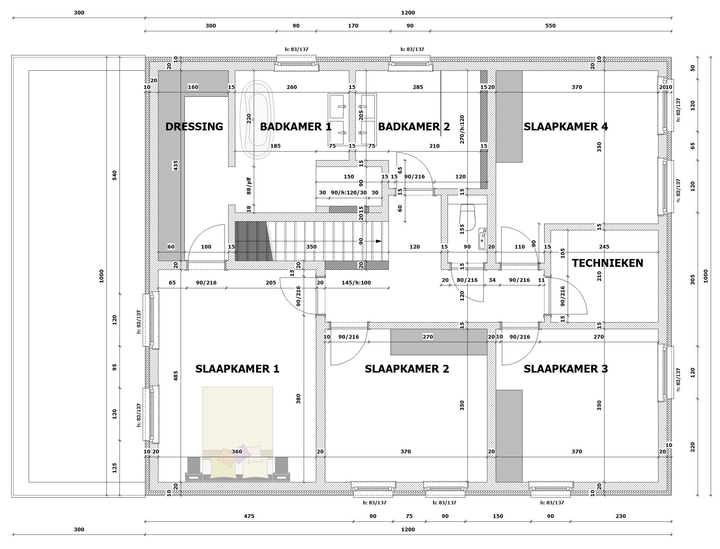
Boven bevinden zich vier volwaardige slaapkamers, waaronder een ruime mastersuite met privébadkamer en dressing, aangevuld met een tweede

badkamer voor kinderen of gasten. Een inpandige garage met berging, een ruime inkomhal en een elegante stalen deur tussen leefruimte en hal vervolledigen het geheel, en massieve eiken trappen en parketvloeren brengen warmte en karakter in de woning.

Ook de ecologische uitrusting is indrukwekkend: o.m. een geothermische warmtepomp met verticale boringen en passieve koeling, 15 zonnepanelen van 440 Wp, een regenwaterput van 10.000 liter, driedubbele zonwerende beglazing, vloerverwarming en uitstekende isolatie zorgen samen voor een energiezuinige en comfortabele thuis met energielabel A+ (E-peil -2/-1).

Een zeldzame combinatie dus van architecturale klasse, luxueuze én warme binnenafwerking en een toekomstgerichte, energieneutrale visie… aan 6% btw (o.v.).

Verhaegenstraat 26B-26C – 3220 Holsbeek

De combinatie van hoge plafonds en uitgestrekte raampartijen laat het daglicht van ’s ochtends tot ’s avonds overvloedig binnenstromen

Algemene kenmerken

  • Aan 6% btw (*onder voorwaarden)
  • Mooie bouwpercelen van resp. 8,01 & 7,87 are
  • Op 15 min. van centrum Leuven
  • Oprit E314 op slechts enkele minuten
  • Vlakbij tal van prachtige fiets- en wandelroutes (Chartreuzenbos, Wingevalei, Horst…)
  • Zonovergoten leefruimte met open keuken
  • Aparte tv-of bureaukamer
  • 4 slaapkamers waarvan mastersuite met privébadkamer en -dressing
  • Tweede badkamer voor kinderen/gasten
  • Inpandige garage annex berging
  • E-peil -2/-1 (energielabel A+)
  • Geothermische warmtepomp met verticale boringen (zero CO2 uitstoot!)
  • Vloerverwarming en passieve koeling
  • 15 zonnepanelen van 440 Wp
  • Regenwaterrecuperatie (10.000 liter)
  • Balansventilatie ‘systeem D’ met warmterecuperatie & ‘free cooling’
  • Plafonds van 2,80 m hoog op de gelijkvloerse verdieping
  • Prekablering alarminstallatie, inbouwspots, hangwc’s, vorstvrije buitenkraan
  • Hier nog veel meer over het technische DNA van een Kwadraat-woning

Dit project omvat de volgende woningen

Energielabel A+

E-peil -1

Geothermische warmtepomp

Zonnepanelen

Balansventilatie D

Hypergeïnstalleerde keuken

Aparte tv-ruimte/bureau

4 Slaapkamers

Mastersuite met dressing

2 Badkamers

Inpandige garage

Aparte berging

Eiken parket op 2 niveaus

Eiken trap

7,87 are

Prijs instapklaar:
€ 834.650
+ 0% *
* registratierechten + BTW
?
(meeneembaarheid: )

Wat houdt ‘Instapklaar’ in?

De prijs heeft betrekking op ons afwerkingsniveau ‘Instapklaar’ (integrale, hoogstaande afwerking van de woning, inclusief parket op gelijkvloers en eerste verdieping, op schilderwerken en tuin na).

Voor een concrete beschrijving verwijzen wij naar het lastenboek.

Oppervlakte terrein:
7,87 are
Oriëntatie terrein:
Zuid-west
Verband:
Open
Oppervlakte woning:
265,31 m2
Oppervlakte leefruimte:
67,33 m2
Aantal kamers:
4
Aantal badkamers:
2
Stand der werken:
Ruwbouwwerken in uitvoering
Gelijkvloers
Inkomhal, toilet, leefruimte, tv-ruimte, keuken, berging en garage
1e verdieping
Nachthal, 4 slaapkamers waaronder mastersuite met dressing en eigen badkamer, 2de badkamer, toilet en technisch lokaal
Kerncijfers
E-peil:
-1
?
S-peil:
31
?
Energiebehoefte:
-3 kWh per m²
?
Zonnepanelen
Aantal zonnepanelen:
15
Wp per paneel:
440
Verwarming
  • Geothermische warmtepomp
    ?
Isolatie
  • 15 cm Ytong + 12,2 cm EPS-spouwisolatie
    ?
  • 21 cm EPS vloerisolatie
    ?
  • 14 cm dakisolatie in Polyurethaan
    ?
  • Driedubbele, zonwerende beglazing met U-waarde 0.6
    ?
Ventilatie
  • D-systeem met warmterecuperatie
    ?
  • Vergunning uitgereikt
  • Geen dagvaarding uitgebracht
  • Geen voorkooprecht ruimtelijke ordening aanwezig
  • Verkavelingsvergunning
  • Meest recente stedenbouwkundige bestemming: Woongebied (residentieel, stedelijk of landelijk)

Download hier het lastenboek

Lastenboek
Adres

Verhaegenstraat 26c, Holsbeek, België

Bekijk op google maps

Routebeschrijving

Op de E314 neemt u afrit 21 “Haacht-Rotselaar”. Op het einde van de afrit slaat u rechts af (of links, als men uit de richting van Genk komt) en rijdt u over ongeveer 1,5 km rechtdoor. Daar slaat u links de Sint-Maurusstraat in en vervolgens de eerste straat links. 150 meter verder, links van de straat, bevindt zich het project.

Terug naar overzicht

Heeft u vragen?
Aarzel niet en contacteer ons